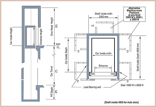
| |
Lift that are fit for people and meet all the requirements
of the current Indian lift Guidelines.
One of their specific applications is that they are especially
designed for the vertical transportation of vehicle or automobiles
and their drivers, which makes them extremely useful for relatively
low traffic and privet garages, Apartments, Complexes, Car Show
Rooms & Service Station.
|